Ciekawe artykuły

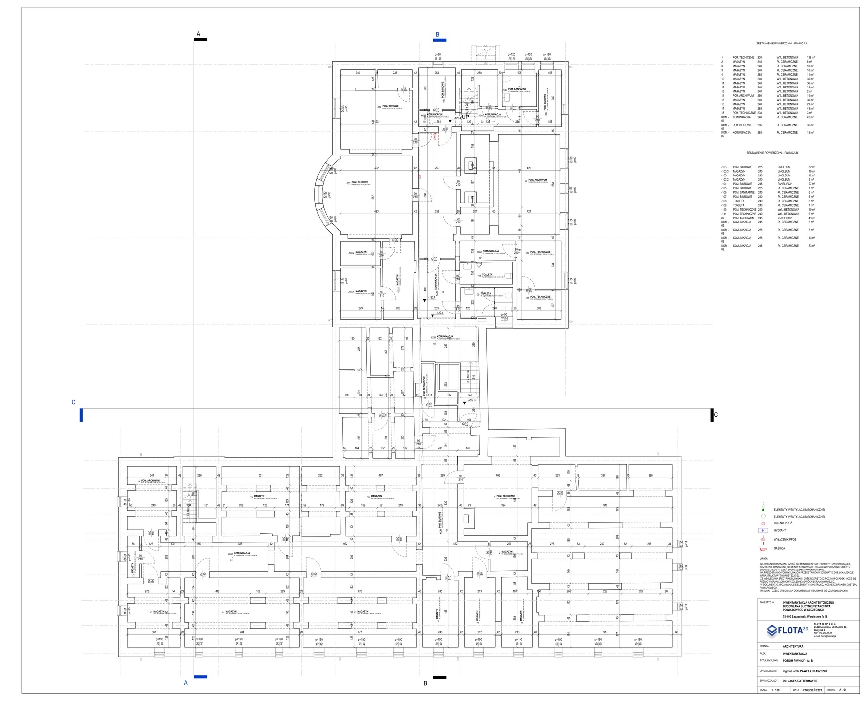
Inwentaryzacja Starostwa Powiatowego w Szczecinku przy użyciu skanowania 3D

Wstęp: Nowoczesne metody dokumentacji architektonicznej i budowlanej otwierają nowe możliwości dla zarządzania infrastrukturą publiczną. Przykładem takiego podejścia jest kompleksowa inwentaryzacja Starostwa Powiatowego w Szczecinku, która została przeprowadzona przy użyciu zaawansowanych skanów 3D oraz wirtualnych spacerów. Opis obiektu i cel projektu: Budynek Starostwa, klasyfikowany jako obiekt

Więcej »

Nowoczesna dokumentacja obiektu rekreacyjno-sportowego „Rondo” w Koninie z użyciem skanowania 3D

Zachęcamy do zapoznania się z zaawansowanym procesem inwentaryzacji kompleksu sportowego „Rondo” w Koninie. Projekt ten, zrealizowany przy pomocy nowoczesnego skanera naziemnego FARO, stanowi przykład wykorzystania najnowszych technologii w optymalizacji zarządzania i konserwacji dużych obiektów użyteczności publicznej. Opis obiektu i jego funkcje: Kompleks „Rondo”, zbudowany w

Więcej »

Skanowanie 3D Kościoła św. Jakuba w Raciborzu – Nowoczesna dokumentacja dziedzictwa architektonicznego

Specjalizujemy się w precyzyjnym skanowaniu 3D zabytków, a naszym najnowszym projektem jest Kościół św. Jakuba w Raciborzu. Wykorzystanie zaawansowanej technologii pozwoliło nam na stworzenie szczegółowych modeli cyfrowych tego unikalnego obiektu, co jest nieocenione dla jego dalszej ochrony i badań. Kościół św. Jakuba, zbudowany pierwotnie około

Więcej »

Inwentaryzacja architektoniczno-budowlana budynku przemysłowego w Gliwicach

Wstęp: Dzięki zastosowaniu skanowania laserowego 3D, przeprowadziliśmy kompleksową inwentaryzację jednego z zabytkowych obiektów przemysłowych w Gliwicach. Nasza najnowsza technologia umożliwiła stworzenie dokładnej chmury punktów, która posłużyła do szczegółowej analizy stanu technicznego budynku i zaplanowania dalszych działań konserwacyjnych. Opis obiektu: Budynek, zaliczany do kategorii XVIII –

Więcej »

Nowoczesne Technologie Pomiarowe w Inwentaryzacji Architektoniczno-Budowlanej

Współczesne projekty architektoniczne i budowlane stawiają przed inżynierami i architektami coraz większe wymagania dotyczące precyzji i dokładności pomiarów. Tradycyjne metody inwentaryzacji, choć nadal powszechnie stosowane, często nie są w stanie sprostać złożoności współczesnych budynków i przestrzeni. Flota 3D, odpowiadając na te wyzwania, wykorzystuje najnowocześniejsze technologie

Więcej »

Klucz do efektywności? Nasza precyzyjna dokumentacja 2D

Dokumentacja 2D odgrywa kluczową rolę we wszystkich etapach procesu projektowego, stanowiąc podstawę do analizy, planowania i wdrażania projektów inżynieryjnych oraz architektonicznych. Skanowanie laserowe a dokumentacja 2D W kontekście wykorzystania chmury punktów w dokumentacji 2D, można ją rozumieć jako wynik przetwarzania danych trójwymiarowych, pozyskanych technologią skanowania

Więcej »
Chcemy poznać Twoje potrzeby!

Kontakt

FLOTA 3D Sp. z o. o.
ul. Chopina 94, Jaworzno

e-mail: biuro@flota3d.pl

e-mail: oferty@flota3d.pl
tel.: +48 882 922 513

tel.: +48 696 600 255

tel.: +48 604 439 901

(Kierownik d/s 3D)

Radosław Ganobis
tel.: +48 882 922 513
e-mail: radoslaw.ganobis@flota3d.pl

    *Twój e-mail

    *Telefon kontaktowy

    *Treść wiadomości