Zachęcamy do zapoznania się z zaawansowanym procesem inwentaryzacji kompleksu sportowego „Rondo” w Koninie. Projekt ten, zrealizowany przy pomocy nowoczesnego skanera naziemnego FARO, stanowi przykład wykorzystania najnowszych technologii w optymalizacji zarządzania i konserwacji dużych obiektów użyteczności publicznej.
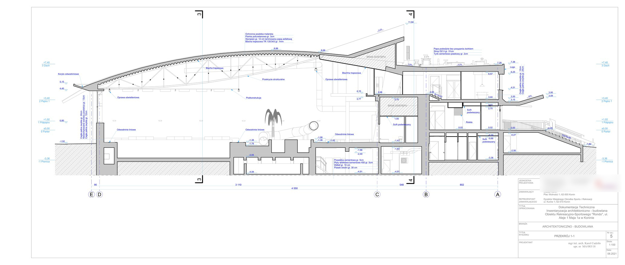
Opis obiektu i jego funkcje: Kompleks „Rondo”, zbudowany w 1970 roku, jest ważnym centrum aktywności lokalnej społeczności, obejmując hale sportowe, baseny kryte oraz liczne udogodnienia rekreacyjne. Budowla ta charakteryzuje się dynamiczną formą z zygzakowatą linią dachu oraz zróżnicowaną wysokością poszczególnych segmentów.
Proces skanowania 3D: Skanowanie obiektu „Rondo” wykonane zostało z niespotykaną precyzją, co umożliwiło szczegółowe odwzorowanie zarówno zewnętrznych elementów architektonicznych, jak i wewnętrznych przestrzeni użytkowych. Dzięki zastosowaniu technologii FARO, uzyskane dane 3D pozwoliły na dokładną analizę stanu technicznego obiektu, identyfikację obszarów zawilgoceń oraz ocenę kondycji instalacji budowlanych.
Korzyści z zastosowania skanowania 3D:
Dokładność diagnostyki: Skanowanie 3D dostarcza danych z precyzją do milimetra, co jest kluczowe dla efektywnego planowania remontów i renowacji.
Optymalizacja kosztów: Precyzyjne dane pozwalają na uniknięcie niepotrzebnych kosztów, zaplanowanie działań konserwacyjnych oraz szybką reakcję na ewentualne awarie.
Dostępność i archiwizacja danych: Cyfrowe modele obiektu są łatwo dostępne dla zarządców, konserwatorów i inżynierów, co wspomaga bieżące i przyszłe działania zarządcze.
Nasza firma oferuje kompleksowe usługi skanowania 3D dla różnorodnych obiektów, od zabytków po nowoczesne kompleksy sportowe. Zapewniamy, że nasze technologie skanowania są najnowocześniejszym rozwiązaniem na rynku, które pozwoli każdemu obiektowi na utrzymanie doskonałej kondycji i funkcjonalności. Skontaktuj się z nami, aby dowiedzieć się więcej o możliwościach współpracy.